2025
12.31 Wed
ブログを書いた人
細澤 明子 hosozawa akiko

三輪9丁目売土地プラン考察

こんにちは!

気付けば今年も残りわずか…

年を重ねるごとに、時の流れの速さに戸惑いを隠せません。

寒さも厳しくなりましたが、

陽だまりの家にお住いの方々は暖かい大晦日をお過ごしのことと思います。

 

さてタイトルにあります細澤建設の建築条件付き売土地についてですが、

先日、三輪10丁目が無事にご成約となりました。

お打ち合わせも進み、工事の様子もお伝えできたらと思います。

そして三輪9丁目も引き続き販売中です。

今回は三輪9丁目の建築条件付き売土地の参考プランをご紹介したいと思います。

 

まず三輪9丁目の土地との出会いについて。

元々この場所には、平屋の貸家が建っていました。

長年、賃貸住宅として使われていたのですが、

建物の老朽化とともに賃貸することもなく長らく空き家となっていました。

そこで大家さんが売却をご検討。

その際に、ご自宅のメンテナンス等で何十年とお付き合いさせていただいた私たちにお声がけいただきました。

先祖代々受け継がれてきた大事な土地を、今度は私たちに受け継いでいただき

新たなご縁の橋渡しをすべく、始動しました!

 

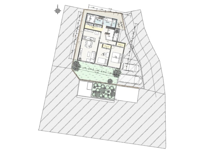
敷地形状から小さく見えがちですが、54.25坪の広さがありますので

二階建てはもちろんですが平屋も建設可能です!

今回は平屋プランをご紹介したいと思います。

こちらは2~3人家族を想定した平屋プラン。

延床面積が23.79坪です。

大容量のWICにシューズクローク、個室にクローゼットと

収納力も抜群です!

敷地形状にあわせて各部屋を配置することで、

駐車スペースも十分確保できます。

 

外観イメージはこちら。

片流れの屋根にすることで、スッキリとシャープな印象になります。

南にあるゴミステーションは、目隠しフェンスをすることで人通りも気になりません。

当初ゴミ出しの様子が気になり、可燃ごみの日に見に行ったことがあるのですが、

きれいに整頓され清掃も行き届いていました。

静かな環境で、陽当たりも抜群です。

プランの詳細な内容や金額等、気になる方はぜひお問い合わせください♪

 

次回は年明け、二階建てプランをご紹介したいと思います。

来年も細澤建設不動産部をよろしくお願いいたします!